Miquel Luque
Architecture Portfolio
Ser, estar i pertànyer
Genís G. / Miquel L. / Gemma V.
Estat actual
Diagnosi
Proposta
Rehabilitació en els edificis de Viladomiu Vell
Vista diürna de la
bassa de laminació
Vista noctura de la
bassa de laminació
Vista diürna de la
bassa de laminació
Vista noctura de la
bassa de laminació
Estratègies projectuals vinculats a l'habitatge
Descarregar l'arxiu
12_Diagrames d'estratègia
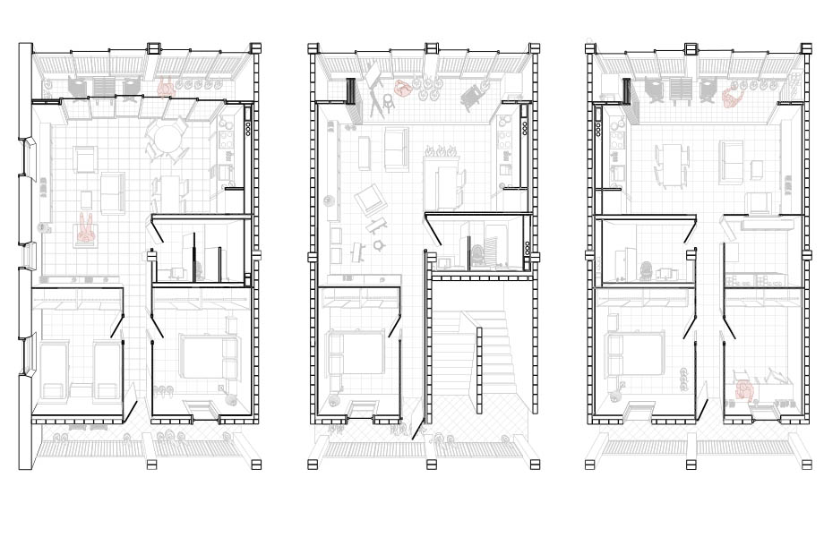
Distribució en l'habitatge
Descarregar l'arxiu
13_Distribucions en planta tipus
Distribució en l'habitatge v.2
Descarregar l'arxiu
13_Distribucions en coberta
Estratègies aplicades a l'edifici
Descarregar l'arxiu
14_Estratègies aplicades al projecte
Estratègies aplicades a l'edifici
Descarregar l'arxiu
15_Estratègies d'envolvent
Estudi d'ombres + design builder
Descarregar l'arxiu
16_Estudi d'ombres
Estratègies en instal·lacions de clima
Descarregar l'arxiu
17_Instal·lació de clima
Detall constructiu en secció per les habitacions
Descarregar l'arxiu
18_Secció transversal per les habitacions
Estratègies en instal·lació de fontaneria
Descarregar l'arxiu
19_Estratègies en instal·lació de fontaneria
Detall constructiu en secció sala d'estar + cuina
Descarregar l'arxiu
20_Secció transversal per mòdul obert
Estratègies de la instal·lació elèctrica
Descarregar l'arxiu
21_Instal·lació elèctrica
Detall constructiu de secció longitudinal
Descarregar l'arxiu
22_Secció longitudinal
Detalls constructius específics del projecte
Descarregar l'arxiu
23_Detalls constructius
Estratègies en façana
Descarregar l'arxiu
24_Estratègies en façana
Fases de modificació de l'edifici
Descarregar l'arxiu
25_Fases proposta
Fases de modificació de l'edifici v.2
Descarregar l'arxiu
25_Fases proposta
Estratègies d'enderroc i obra nova
Descarregar l'arxiu
26 Estratègies d'enderroc i obra nova
Escenaris possibles
Descarregar l'arxiu
27_Escenaris possibles
Escenaris possibles v.2
Descarregar l'arxiu
27_Escenaris possibles
Estratègies d'espai públic
Descarregar l'arxiu
29_Estratègies espai públic
Espai públic
Descarregar l'arxiu
30_Espai públic
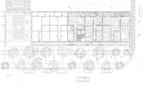
Planta tipus
Descarregar l'arxiu
30_Espai públic
Catàleg vegetació
Descarregar l'arxiu
31_Catàleg de vegetació
Catàleg vegetació v.2
Descarregar l'arxiu
31_Catàleg de vegetació
Estratègia espai públic del mur
Descarregar l'arxiu
32_Estratègia espai públic del mur
Estratègia espai públic del mur v.2
Descarregar l'arxiu
32_Estratègia espai públic del mur
Estratègia espai públic del mur v.3
Descarregar l'arxiu
32_Estratègia espai públic del mur
Estratègia espai públic del passeig
Descarregar l'arxiu
33_Estratègia espai públic del passeig
Estratègia espai públic del passeig v.2
Descarregar l'arxiu
33_Estratègia espai públic del passeig
Vista interior direcció a l'espai públic proposat.
Proposta d'habitatge per
Ramona i Valentí
Estat actual
Ramona i Valentí
Plantes distribució tipus dels habitatges
Rehabilitació habitatge de la Dolors
Proposta d'habitatge per
Dolors
Estat actual
habitatge Dolors